施設図面のご案内
イベントスペース、多目的ホール、交流ルームの各種図面、多目的ホールの断面図がダウンロードできます。※画像jpgファイルは各施設の詳細ページと同ファイル
<全施設共通>
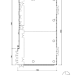
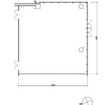
電源系統図<電源コンセント配置図>(左図)/避難経路図(右図)
![]() |
![]() |
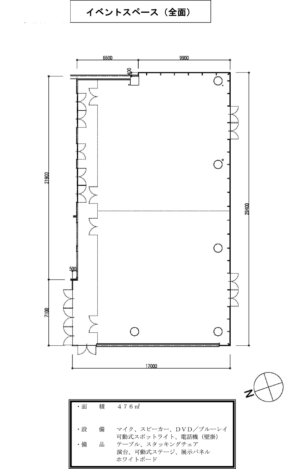
イベントスペース
イベントスペース全面/476㎡
<画像/png> |
|
<画像/png> |
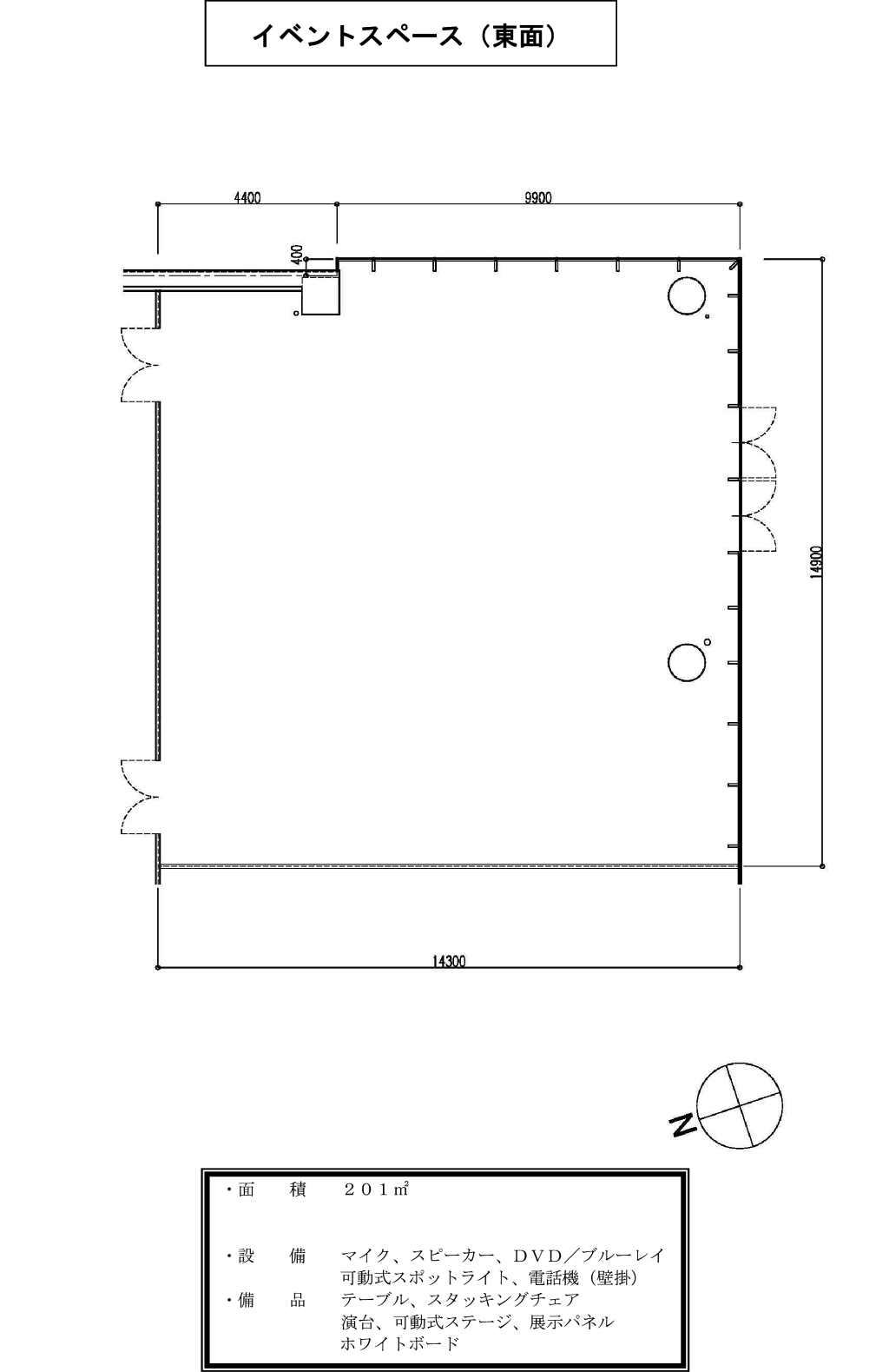
イベントスペース東面/201㎡
<PDF> |
<画像/png> |
イベントスペース西面/210㎡
<PDF> |
<画像/png> |
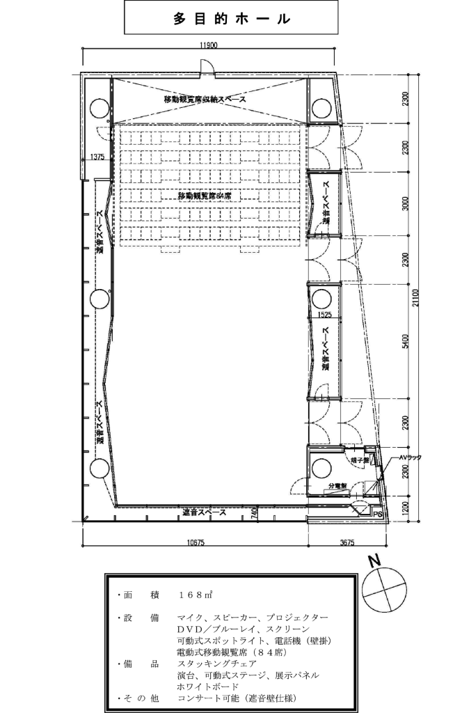
多目的ホール/168㎡
<PDF> |
<画像/png> |
<PDF> |
<画像/jpg> |
交流ルーム
交流ルーム101/61㎡
<PDF> |
<画像/png> |
交流ルーム102/54㎡
<PDF> |
<画像/png> |
交流ルーム103/20㎡
<PDF> |
<画像/png> |
交流ルーム104/44㎡
<PDF> |
<画像/png> |
交流ルーム201/23㎡
<PDF> |
<画像/png> |
交流ルーム202/27㎡
<PDF> |
<画像/png> |













































