交流ルームのご案内
1F/交流ルーム101
収容人数36名/61㎡
交流ルームの中では一番大きなお部屋です。会議や勉強会、ワークショップなどに最適です。
![]() |
![]() |
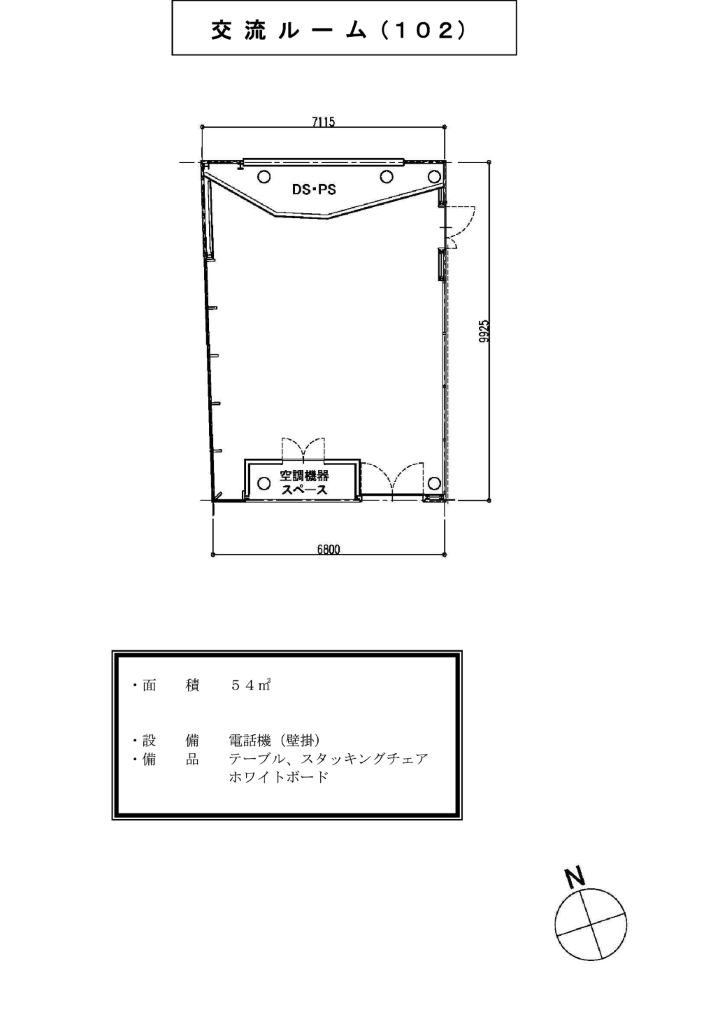
1F/交流ルーム102
収容人数30~36名程度/54㎡
101号室についで大きなお部屋です。会議や勉強会、ワークショップなどに最適です。
![]() |
![]() |
1F/交流ルーム103
収容人数12名/20㎡
交流ルームの中では一番小さなお部屋の一つです。遮音構造で楽器や歌の練習などにもご利用いただけます。
![]() |
![]() |
1F/交流ルーム104
収容人数20名~30名程度/44㎡
遮音構造のお部屋です。楽器や歌の練習から、小規模の演奏会などにもご利用いただけます。
![]() |
![]() |
2F/交流ルーム201
収容人数12名程度/23㎡
交流ルームの中では一番小さなお部屋の一つです。小規模会議や個人の学習、テレワークなどに最適です。
![]() |
![]() |
2F/交流ルーム202
収容人数12名程度/27㎡
開放的な雰囲気の比較的小さなお部屋です。小規模会議や個人の学習、テレワークなどに最適です。
![]() |
![]() |
施設貸出備品
各ルームには無料備品(備付)と、別途有料備品をご利用いただけます。
| 無料備品 | 料金 | 有料備品 |
| テーブル、イス、ホワイトボード | 無料 | こちらからご確認いただけます |
| プロジェクター、スクリーン、CDラジカセ、電子ピアノなど | 有料 | こちらかからご確認いただけます |
利用料金
各交流ルームの1時間ごとの利用料金です。入場料金を徴収する場合は通常料金の2割増の額となります。
![]() |
施設ご利用にあたって
施設ご利用時は、必ず利用案内、または山梨県立図書館利用規程に従ってください。
空き状況の検索
施設の空き状況をこちらから検索いただけます。利用計画にご活用ください。
利用予約(利用申込)
施設のご予約はお電話にて承ります。ご予約から申込に係る流れはこちらからご確認ください。
利用申込書の取得はこちらからご取得いただけます。

































